Location Bureaux à Vertou
79 m² - 145 € HT/HC/M²/an
Voir la galerie photo
Référence : 44.39766-79 2026
Caractéristiques
- Vertou
- Bureaux
- 79.00 m²
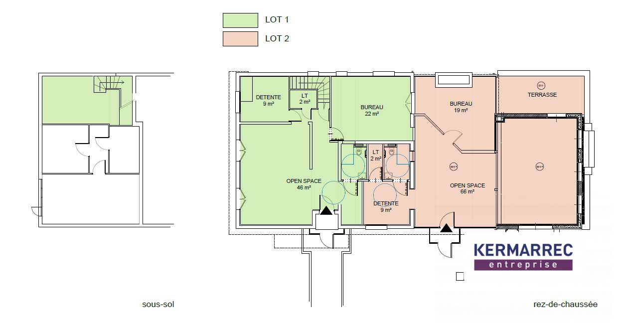
Les locaux sont composés d'1 open-space , d'1 bureau cloisonné, d'un espace détente ainsi que d'un local technique.
Locaux entièrement rénovées.
Liberté de stationnement au sein du parking situé devant le bâtiment.
Cette surface de bureaux est située dans un cadre verdoyant et arboré au sein d'un parc tertiaire, et est à proximité des zones commerciales St Sébastien et Pôle Sud.
Honoraires de 3 092,85 € HT à la charge du locataire (27% du loyer annuel). Provision sur charges 221,20 € HT/mois, régularisation annuelle. Dépôt de garantie 2 863,75 €. DPE en cours. Les informations sur les risques auxquels ce bien est exposé sont disponibles sur le site Géorisques : georisques.gouv.fr.
Zone d'activités
Découvrez votre zone d'activités
Les Coteaux de Sèvre - Le Chêne - Portillon - La Forêt est un quartier calme avec 96 % de maisons et 4 % d'appartements.
Il y a 90 commerces de proximité dont un supermarché.
Il y a de nombreux espaces verts.
Le quartier est situé à 10 km de Nantes ou 25 minutes en voiture.
Ce bien vous intéresse ?
Contactez votre consultant en immobilier d'entreprise : Servane GOASDOUE











